無錫厚浦環保科技有限公司生產網板式階梯格柵,砂水分離器,PAM加藥裝置,產品質量好 |
|
|
|
 |
|
無錫厚浦環保科技有限公司
史經理 15906151243
邵經理 15301530861
電話:0510-87830610
傳真:0510-87831340
網址:www.ahrxzn.com
郵箱:hopehb@126.com
地址:江蘇省宜興市高塍鎮塍文路18號 |
|
|
|
|
WBF轉刷網蓖式格柵除污機
|
概述: |
|
WBF轉刷網蓖式格柵除污機適用于城市污水處理、自來水行業、電廠進水口,同時也可作為紡織、食品加工、造紙、皮革等行業生產工藝中不可缺少的專業設備,是目前技術穩定的固液分離設備之一。
|
|
工作原理: |
|
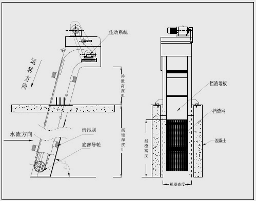
WBF轉刷網蓖式格柵除污機主要由驅動裝置、機架、主軸、柵網、托渣板、固定板刷、回轉刷及牽引鏈組成。在電機驅動下,通過減速機減速后,帶動鏈輪與鏈條運動,固定在回轉鏈條上板刷沿柵網網面由下而上移動,清掃網面并帶走污物,污物運送至頂部時,大部分靠重力自行落至排渣都,少量附著在固定板刷上的污物被轉動的回轉刷清除掉,完成除污過程,液體則通過柵網的間隙流過,整個工作過程連續進行。
|
|
特點與應用: |
|
轉刷網蓖式格柵除污機能對水中的果皮、雜草、懸浮物等容易纏繞難以卸料的雜質進行可靠的攔截和清除,有效應用于果汁制品廠、果醬制品廠、農作物制品廠等。相對于耙齒形式的細格柵,本產品優點:傳動部件相對較少,工作可靠;采用便拆式結構,維護簡單;設備有自潔機構,不易堵塞,不易被垃圾纏繞、容易卸料。
|
|
外形示意圖: |
|
|
過水流量計算: |
過水流量計算——
格柵每小時過水流量:
Q=K*(B-160)*h*V*3600
其中:
Q=過水流量(m³/h);
K=與格柵間隙有關的流量系數(見系數表);
B=格柵機寬(m);
h=柵前水深(m),一般按1m或低于渠深0.3m以上;
V=過流速度,一般取0.6~1m/s。
|
|
主要技術參數: |
表4-1 過流系數K
|
|
格柵間隙 (mm)
|
0.5
|
1
|
2
|
3
|
5
|
流量系數K
|
0.08
|
0.1
|
0.12
|
0.27
|
0.36
|
|
注:可以采用插值法得出其他間隙對應K值的近似值。
|
|
|
|
|
|
|
|
|